ARCHITECT DESIGNED OFFICE SPACE IN CORPORATE BUILDING FULLY FURNISHED AVAILABLE NOW

197 Sqm of Architect designed office space with as new modern office furniture included ready to move in to!

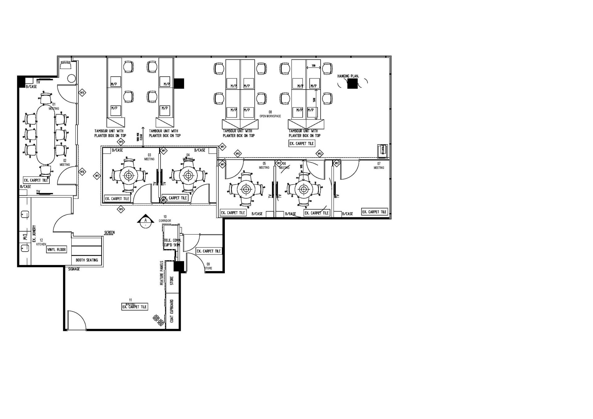
Don't miss out on this amazing opportunity. If you are looking for a corporate style office to grow your team into or even down size too this one is a must. 2 office suites, in one of the best Corporate office buildings in suburban Melbourne. The internal office has been architecturally designed. Combining 2 suites into the one space. The floor plan says it all! No expense has been spared on the fit out as well as the office furniture. In as new condition! 

12 open plan desk spaces. 5 office/meeting/breakout spaces. large board room that will seat up 8-10 with monitor. Professional reception/waiting area. Internal kitchen, with fridge, dishwasher and other appliances. No expense has been spared on the fit out with quality carpet flooring, timber finishes and high end glass partitions to offices. Bathroom facilities are in the hall way outside. Lots of natural light with window furnishings as well. Fully ducted heating and cooling digitally controlled.

6 car parks designated out side and 1 internal underground. Situated on level 1 on a corner. Close to public transport on Warrigal Rd, two cafes in walking distance and gymnasium. What more would you want? This space is ready for you to move into. Re-brand and start running your business from here.

Contact Matthew Kenny 0413743876 today for a tour. You will not be disappointed.

7
Address 105 & 106, 12 Corporate Dve, Heatherton
Price Contact Agent price includes all furniture
Property Type Commercial
Property ID 807
Category Offices
Office Area 194m2

Agent Details

Matthew Kenny photo

Matthew Kenny

0413743876
View Profile
Alex Kenny photo

Alex Kenny

0457 491 000
View Profile