Spacious, private and superbly renovated 2 bedroom home

Situated in this prized sand belt precinct famous for its championship golf courses, this home is perfect for first home buyers, the savvy investor or downsizers!

Recently renovated with quality fixtures and fittings, you won’t need to do a thing but move in and enjoy the home and the lifestyle living in this location provides.

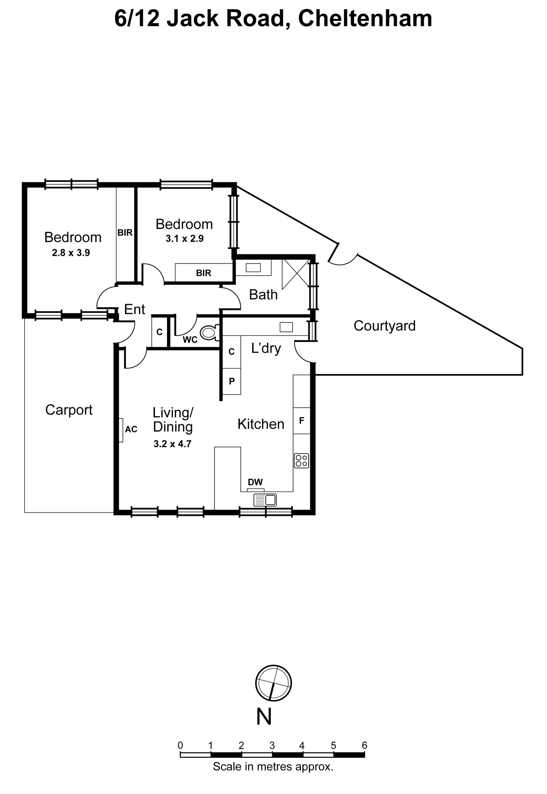
On entering you are welcomed into the light filled and spacious open plan living/dining and modern stylish kitchen, comprising quality appliances, corian benchtops and plenty of cupboards and storage space.

A conveniently located study nook and cleverly designed laundry offers rear access to the paved and private courtyard, perfect for a quiet read.

Accessing the hallway are two bedrooms both with BIR, ceiling fans and natural light, large superbly renovated bathroom and separate WC.

The beautiful original Baltic pine floorboards throughout, attic roof storage reached with foldout ladder, split system heating-cooling in the living area and carport for 1 at the front door entrance enhance this great property.

Within walking distance to Southland Station and the retail and entertainment centre, minutes to Cheltenham’s shopping strip and the café lifestyle,  and easily accessible to beaches and a game of golf.

Cheltenham is always in demand (this special pocket was previously called Pennydale) and thanks to this impressive unit, you too can call this sought after part of the world home.

 

Inspection is easy!! Contact Gina Kendrick 0409 376 450 or Simon Bartaby 0418 315 580.

As advertised or by private appointment.

2 1 1 138 m2
Address Unit 6, 12 Jack Rd, Cheltenham
Price SOLD for $690,000
Property Type Residential
Property ID 650
Category Unit
Land Area 138 m2
Floor Area 83 m2

Agent Details

Matthew Kenny photo

Matthew Kenny

0413743876
View Profile
Simon Bartaby photo

Simon Bartaby

0418 315 580
View Profile
Alex Kenny photo

Alex Kenny

0457 491 000
View Profile